החובה המשפטית והמשמעות לקונה

עבור רבים ממשקי הבית בישראל, רכישת דירה היא לא רק אירוע משפחתי מרגש, אלא העסקה הכלכלית הגדולה שיעשו במהלך חייהם. כאשר מדובר ברכישת דירה חדשה מיזם, לעיתים החשש גדול יותר משום שמדובר במוצר “על הנייר” שטרם בא אל העולם, וזאת בניגוד לרכישת דירה יד שניה שבה ניתן לראות את הדירה ולבחון את מאפייניה בקלות יותר.
משכך קבע המחוקק הוראות שתפקידן להוריד את רמת אי הוודאות ולחייב יזמים לתת מידע לקונים באשר לדירה הנמכרת.
חוק המכר (דירות), תשל”ג- 1973 (“חוק המכר“) קובע שמוכר דירה חייב לצרף לחוזה המכר מפרט. מוכר דירה על פי חוק המכר הוא “מי שמוכר דירה שבנה או שהוא עתיד לבנות בעצמו או על ידי אדם אחר על קרקע שלו או של זולתו, על מנת למכרה, לרבות מי שמוכר דירה שקנה אותה, על מנת למכרה, מאדם שבנה או עתיד לבנות אותה כאמור, למעט מוכר דירה שלא בנה אותה בעצמו ולא קיבל מהקונה תמורה בעד מכירתה”.
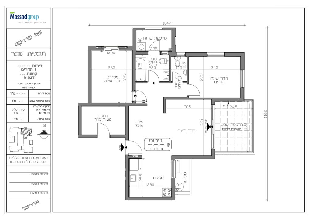
צו המכר דירות (טופס של מפרט) (תיקון) התשס”ח – 2008 (להלן: “צו המכר“), קובע כי יש לצרף למפרט סוגים שונים של תכניות ביחס לדירה הנמכרת. כשמדברים על תוכניות מכר, מתכוונים לתוכניות לרוב בשחור/לבן, הכוללות את חלוקת החללים בדירה, כינויים, מידות וכן מידע לעניין הקומה בה נמצאת הדירה, קומה טיפוסית, קומת הכניסה, הגג ועוד.
סוגי התוכניות שיש לצרף למפרט המכר הן (מתוך צו המכר):

כאן המקום לציין כי דירה לפי חוק המכר, היא כ-“חדר או מערכת חדרים שנועדו למגורים, לעסק או לכל צורך אחר”, ולכן, גם במכירת חנויות, משרדים, מבני תעשיה וכל שטח או יחידה מסחרית אחרת, נדרש לערוך מפרטי מכר ותוכניות מכר בדומה למכירת דירת מגורים.
מכל האמור עולה, כי לחוזה המכר, נדרש המוכר לצרף מפרט מכר ותוכניות מכר.
כאשר מוכר הפר חובה זו ולא צירף תכניות מכר כחלק מהחוזה, קבע בית המשפט* שניתן לראות בפרוספקט השיווקי ואת השטחים שהוצגו בו לקונים כמחייבים, וזאת למרות שבחוזה נרשם שהפרוספקט הוא להתרשמות בלבד. זאת, משום שלא צורפו תכניות מכר עם המידע הנדרש אל חוזה המכר. בהמשך לקו זה, נקבע במספר פסקי דין נוספים שכאשר תכניות המכר ומפרט המכר ברורים ומפורטים דיים הם גוברים על מצגים טרום-חוזיים ופרסומים שיווקיים. עם זאת, במקרים בהם תכניות המכר אינן ברורות או כאשר המוכר מפר חובת גילוי מהותית, המצגים השיווקיים עשויים לחייב את המוכר.
בשורה התחתונה בעסקה שבו חוסר הוודאות הוא מובנה, תכניות מכר אשר ערוכות לפי הוראות חוק המכר וצו המכר הן המפתח לשמירה על השקט הנפשי של הקונה וכמובן למניעת מחלוקות עתידיות.
* עא 6025/92 צמיתות בע”מ נ’ חרושת חימר בע”מ, פ”ד נו(1) 826.

קרן אמיתי, עו"ד – מנהלת משפטית

